1701 MONTROSE STREET
1701 MONTROSE STREET
SEE ALL PHOTOS
1701 MONTROSE STREET
1701 MONTROSE STREET
Active Under Contract

1701 MONTROSE STREET

1701 MONTROSE STREET, PHILADELPHIA, PA 19146

$285,000
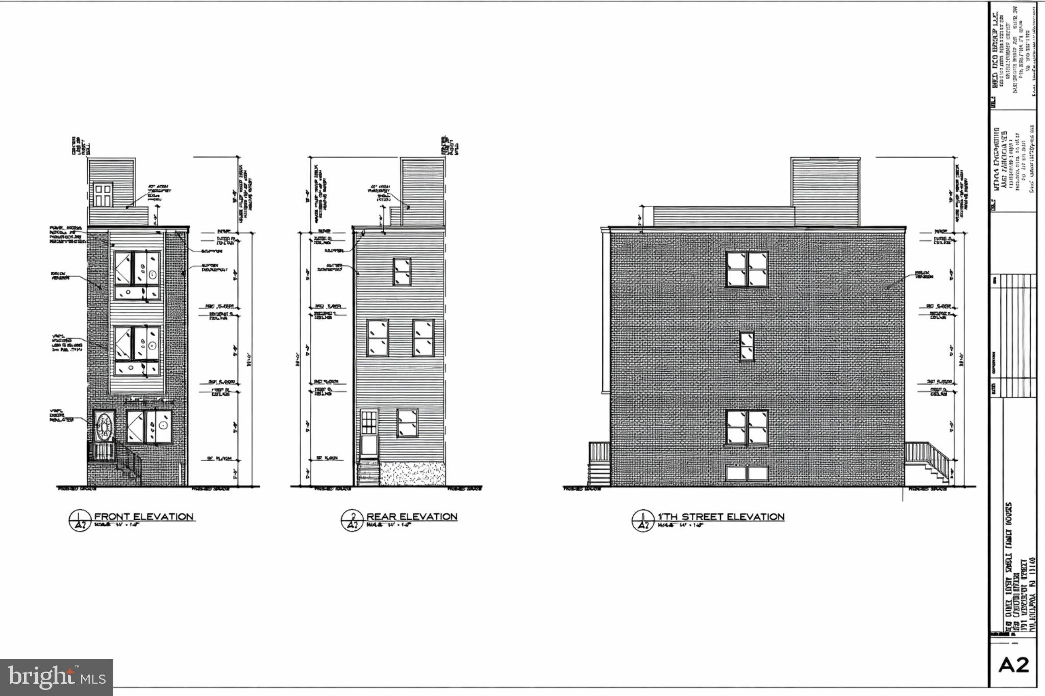
Presenting a rare corner lot opportunity in the heart of Graduate Hospital, directly across from Carpenter Green Park offering exceptional visibility, natural light exposure, and unmatched neighborhood presence. Zoned RM1 & Located in one of Philadelphia's most desirable and rapidly appreciating communities, this prime parcel is ideally positioned just minutes from Center City, Rittenhouse Square, and the city's premier dining, shopping, and cultural destinations. Enjoy walkable access to CHOP and UPenn, along with seamless connectivity to I-95, I-76, I-676, bridges to New Jersey, and Philadelphia International Airport. Surrounded by high-quality new construction and strong buyer demand, this property presents an outstanding opportunity for builders, developers, and end users alike. Whether envisioning a custom three-story luxury residence for personal use or a high-performing resale project, this lot offers the flexibility and location to support exceptional value. Architectural plans for a proposed three-story single-family home, detailed exterior elevations, and a professional geotechnical report are available, providing a clear and efficient path to development. Corner parcels of this caliber in Graduate Hospital are exceedingly rare making 1701 Montrose Street a premier opportunity to build, invest, and create in one of Philadelphia's most sought-after neighborhoods. Reach out today.

611 Sq.Ft. lot


Features & Amenities

Area & Lot

  • Status Active Under Contract
  • Lot Area611 Sq.Ft.
  • MLS® IDPAPH2586668
  • TypeLand
  • School DistrictPHILADELPHIA CITY

Exterior

  • water SourcePublic
  • sewerPublic Sewer

Financial

  • Sales Price$285,000
  • Real Estate Tax $1,923/yr
  • Zoning RM1

UNLOCK THE BLACK LABEL™ EXPERIENCE

BlackLabel™ Luxury Real Estate Services offers a unique experience. What others consider “above and beyond” is where we begin.

Follow Us On Instagram